641 7th Avenue Fernie, British Columbia V0B 1M0

3,711 ft2
Central Air Conditioning Forced Air Level

$1,799,000

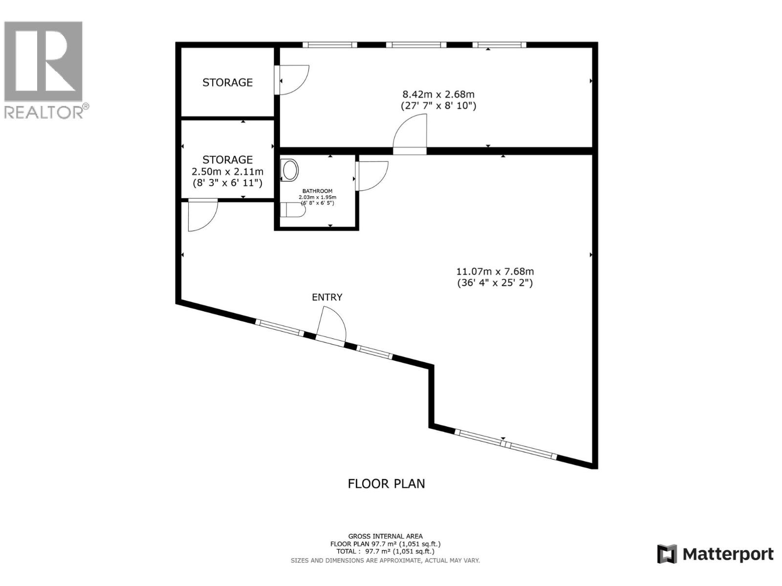
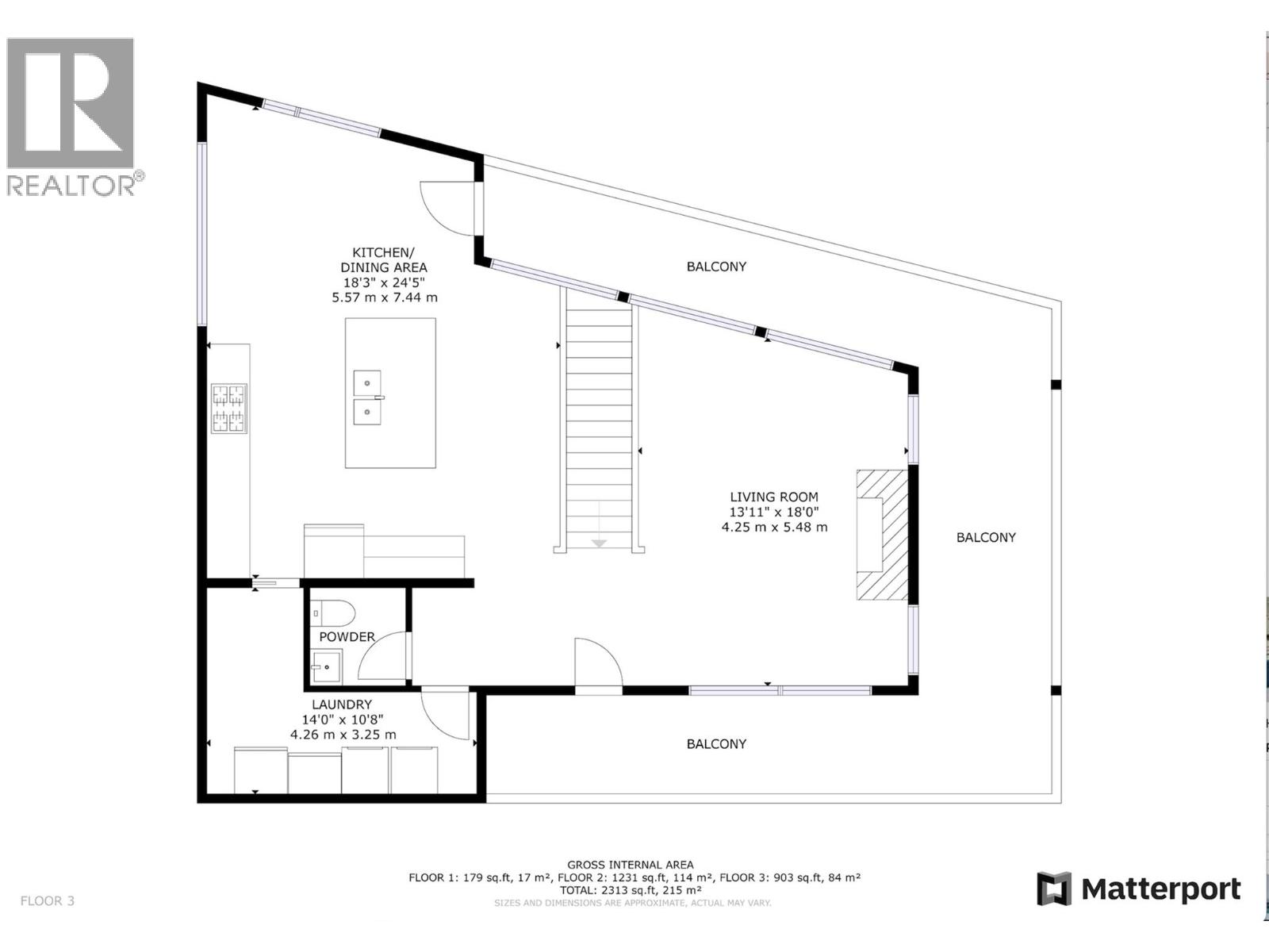
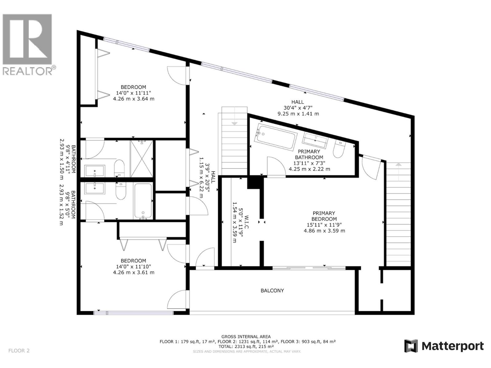
Opportunity knocks! Located in the heart of Fernie BC, this unique property, built in 2017 showcases inspired modern design.This property is zoned Commercial Highway offering a long list of uses: run your own business or earn revenue providing highly sort after commercial rental space. The commercial occupants will be vacating upon possession providing a blank slate for what you envision for this space! Let's explore top down. The topmost floor offers penthouse feels with unobstructed 180-degree views over the town through the expansive windows from an open plan living space bathed in natural light day long. You’ll spend all your time up here, enjoying your time beside the wood-burning fireplace or on the huge hot-tub-ready deck that wraps around 3 sides of this level. You’ll appreciate the dedicated dining space, well-appointed kitchen with walk-in pantry and conveniently located laundry and powder room on this level. Below, on the middle floor you’ll discover 3 bedrooms, all with their own full ensuite bathroom. The primary bedroom offers views of Mt Fernie through double doors or from it’s own private balcony. The lower level of this home comprises of the entry to the residence and a fully self-contained 1125 sqft commercial space. Other features include: air conditioning, large side yard for off-street parking or other, full footprint crawl space = storage++, exceptional highway exposure for business potential and MORE!. Book a tour! (id:47197)

Property Details

MLS® Number 10335227
Property Type Other
Neigbourhood Fernie
Amenities Near By Golf Nearby, Park, Recreation, Schools, Shopping, Ski Area
Community Features High Traffic Area
Features Level Lot

Building

Constructed Date 2017
Cooling Type Central Air Conditioning
Exterior Finish Cedar Siding, Other
Heating Type Forced Air
Roof Material Metal
Roof Style Unknown
Size Interior 3,711 Ft2
Type Residential Commercial Mix
Utility Water Municipal Water

Land

Access Type Easy Access, Highway Access
Acreage No
Current Use Mixed Use
Land Amenities Golf Nearby, Park, Recreation, Schools, Shopping, Ski Area
Landscape Features Level
Sewer Municipal Sewage System
Size Irregular 0.12
Size Total 0.12 Ac|under 1 Acre
Size Total Text 0.12 Ac|under 1 Acre

https://www.realtor.ca/real-estate/27911998/641-7th-avenue-fernie-fernie

Jacqueline Fieldhouse
Personal Real Estate Corporation

(250) 423-1194
www.soldinfernie.com/

RE/MAX Elk Valley Realty
1241 7th Avenue
Fernie, British Columbia V0B 1M5

(250) 423-4444
www.fernielistings.com/